Main navigation
MENU
Projekte
Portrait
Kontakt
GMS ARCHITECTS
GOLIC MIKSAJ STUDIO
|
THUJASTRASSE
|
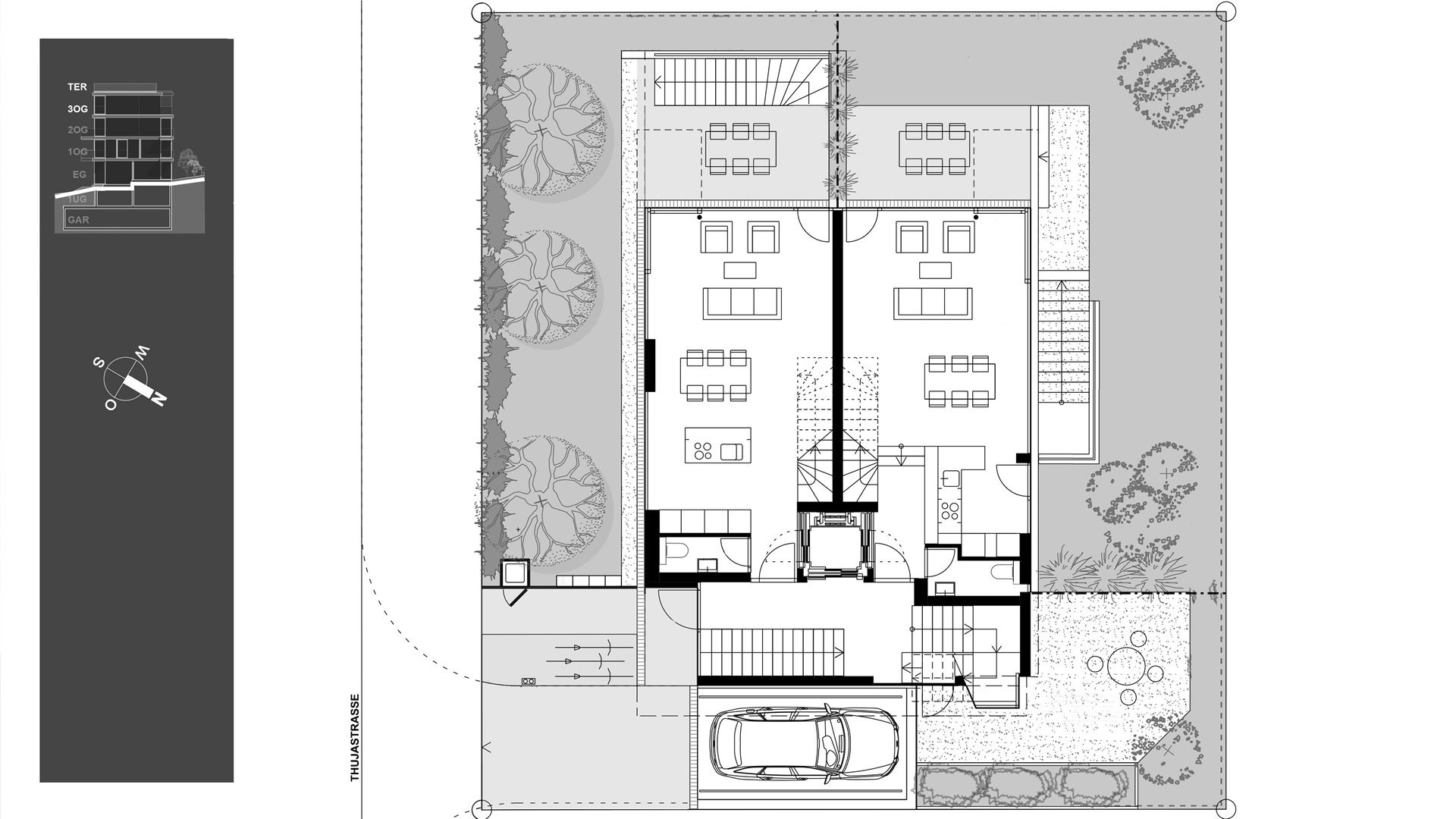
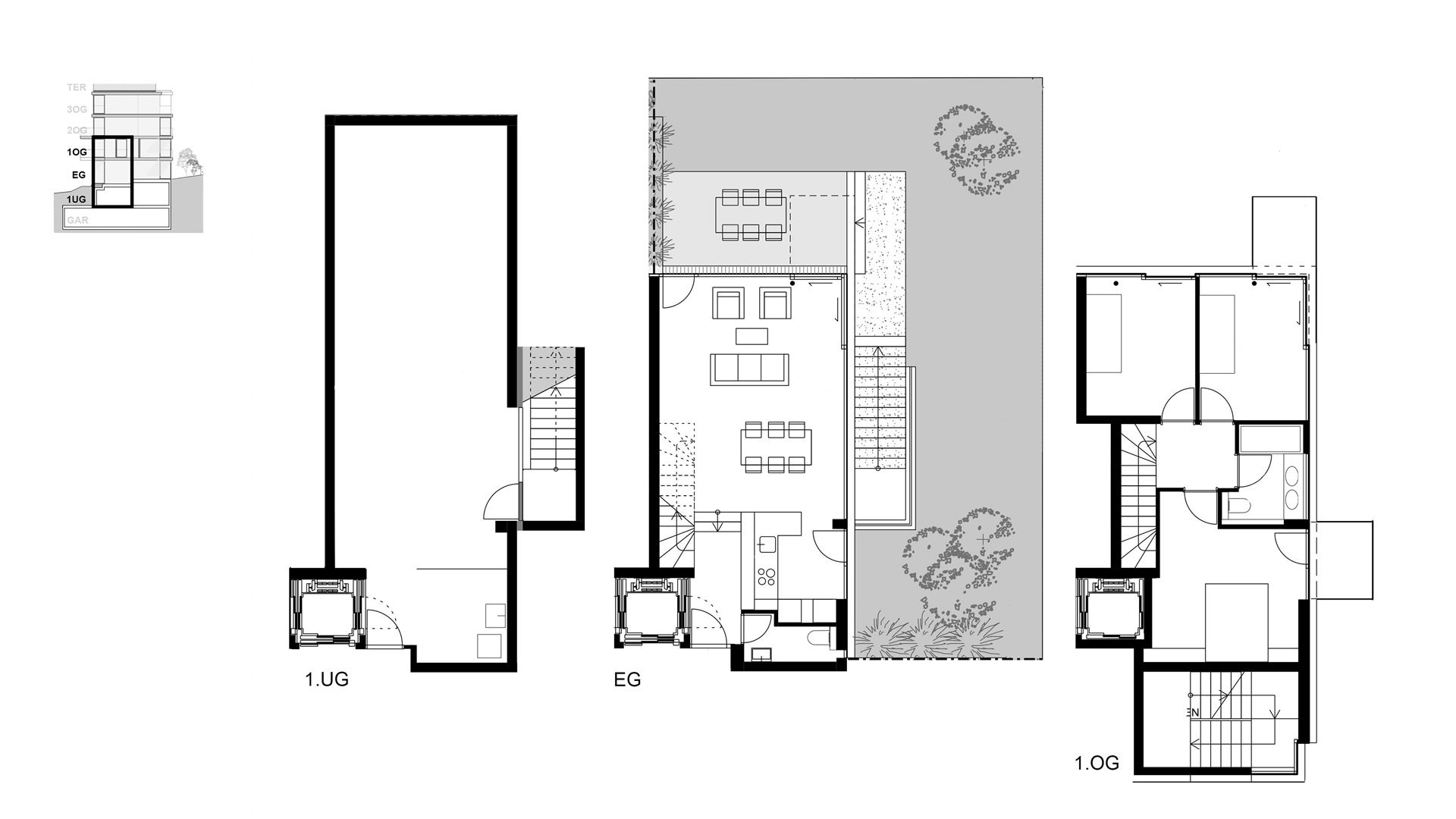
THUJASTRASSE 44, ZÜRICH | 2021
THUJASTRASSE 44, ZÜRICH | 2021
Previous
Next